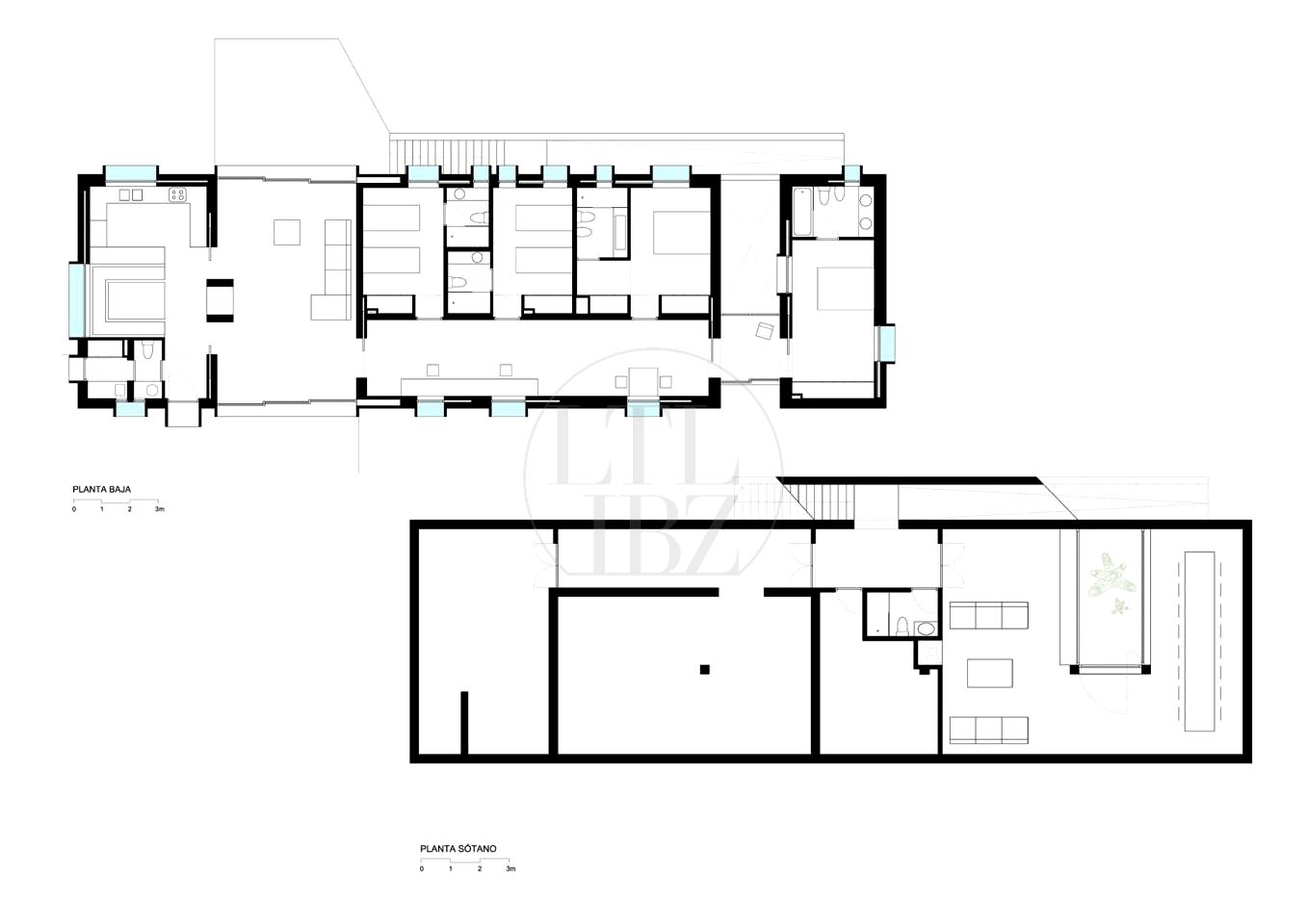
Modern house for sale in Illa Plana – V672
Added:
25 September 2025
Bedrooms
4
Bathrooms
5
Area
460
mq



