Apartamento con Amplias Terrazas, Piscina Privada y Vistas al Golf en Roca Llisa, Ibiza – V723
€1,650,000
Se vende, Venta de villas
€2,900,000
Luxury Villa Beautiful Project, un emprendimiento exquisito presentado por Love to Live Ibiza.
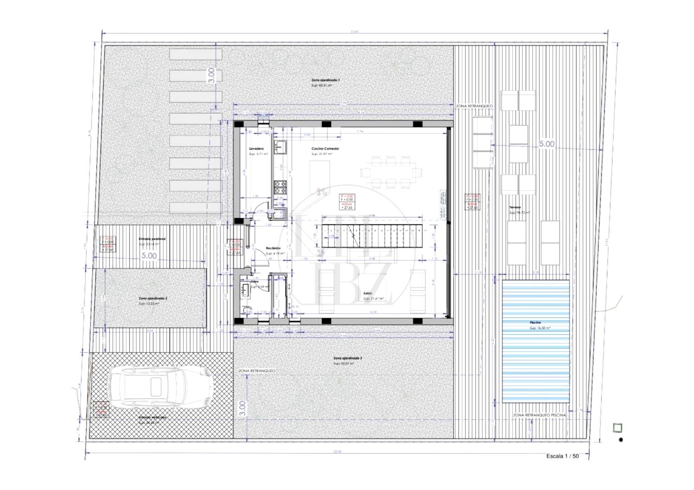
Este notable proyecto de vivienda unifamiliar, disponible para la venta, se encuentra en Ses Torres. Es una de las zonas más cotizadas de Ibiza en la actualidad, reconocida por su proximidad a Talamanca, Jesús e Ibiza ciudad.
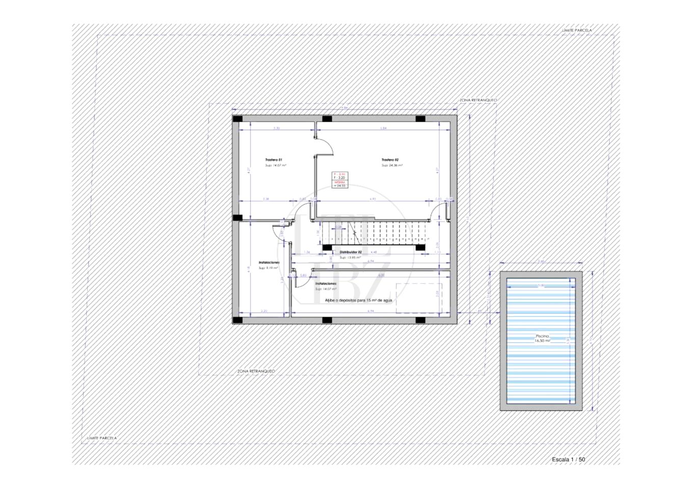
Situada en una parcela urbana privilegiada de 400 metros cuadrados, esta villa se distribuirá en 200 metros cuadrados de espacio habitable y 200 metros cuadrados adicionales en el sótano.
La planta baja le encantará con su amplia sala de estar adornada con amplios ventanales. El área conduce a la piscina, el solárium, el comedor al aire libre y los exuberantes jardines.
La cocina de concepto abierto, integrada en este acogedor espacio habitable, es perfecta tanto para la relajación como para el entretenimiento.
En el primer piso encontrará la zona tranquila de la villa. Aquí encontrará cuatro dormitorios de generosas dimensiones, cada uno de ellos acompañado de su propio cuarto de baño.
Para colmo, la propiedad ofrecerá un espacioso sótano de 200 metros cuadrados. Esta área ofrece infinitas posibilidades para satisfacer sus necesidades y deseos únicos.
Ya sea que busque una residencia permanente en Ibiza, una segunda residencia o una lucrativa oportunidad de inversión, esta villa promete superar sus expectativas. Abrace el epítome de la vida en Ibiza con el Luxury Villa Beautiful Project de Love to Live Ibiza